Description
We have secured a new house build project in the Melbourne area with the contract signed and sealed. And we cannot wait to start on this one!
The build will be the forever home for a lovely couple we have carried out work for before in the Melbourne area.
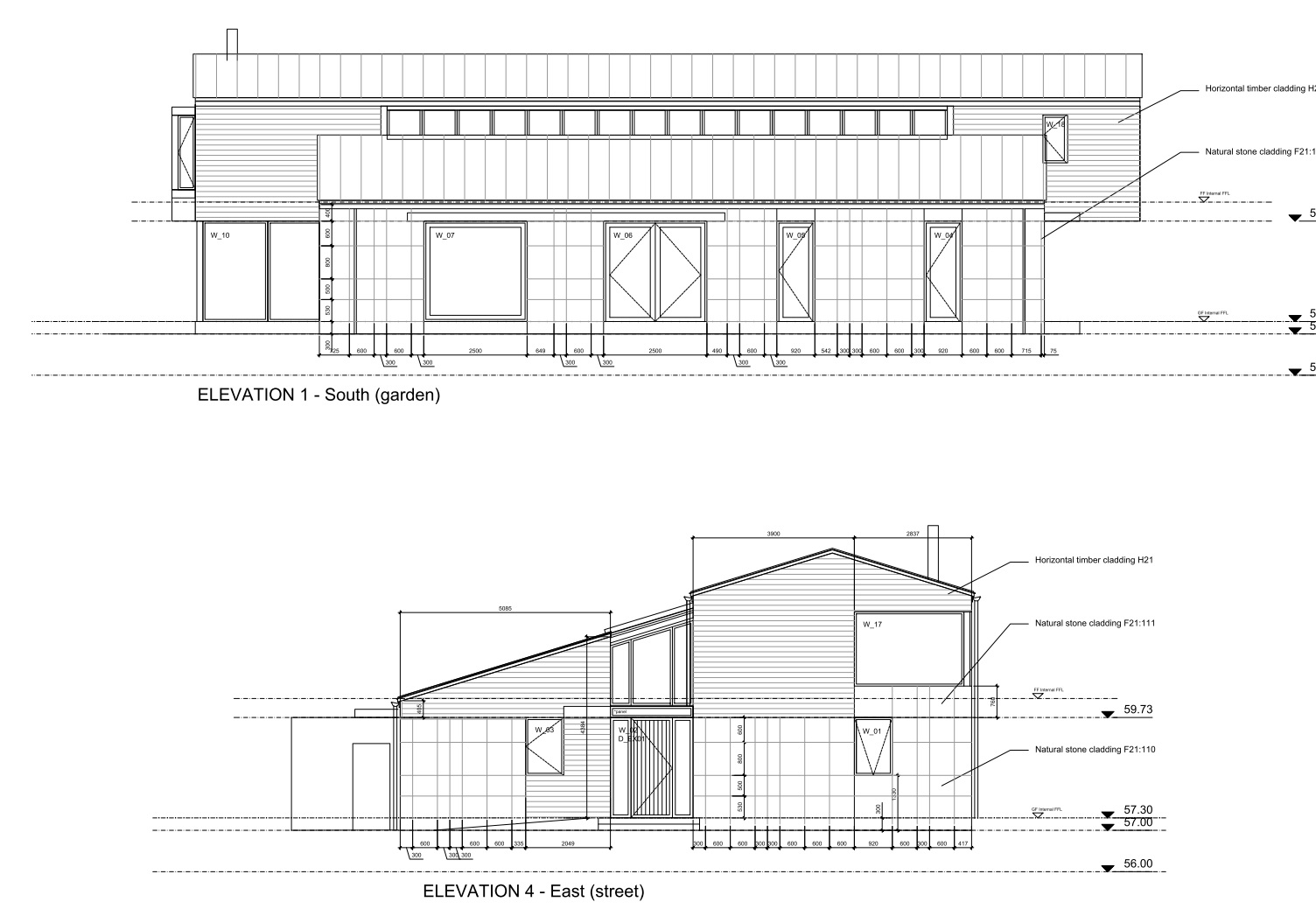
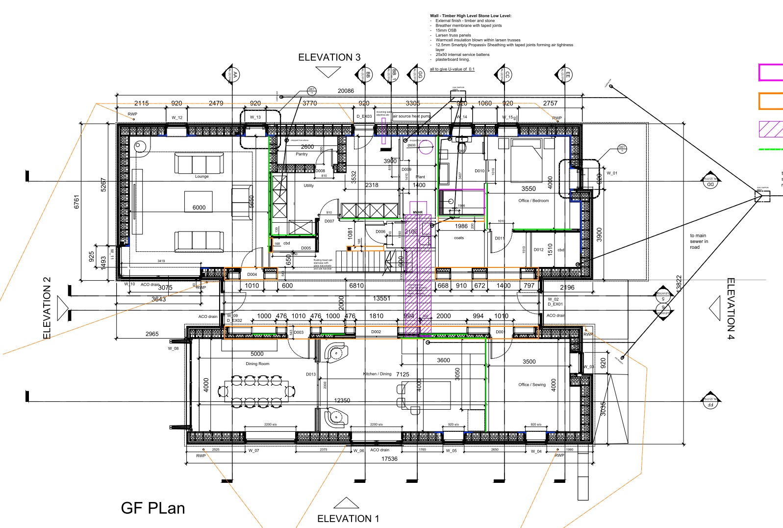
It will be a SIPS build and clad externally with decorative stone.








